Detailed Canteen Plan with Layouts and AutoCAD DWG Drawing File
Description
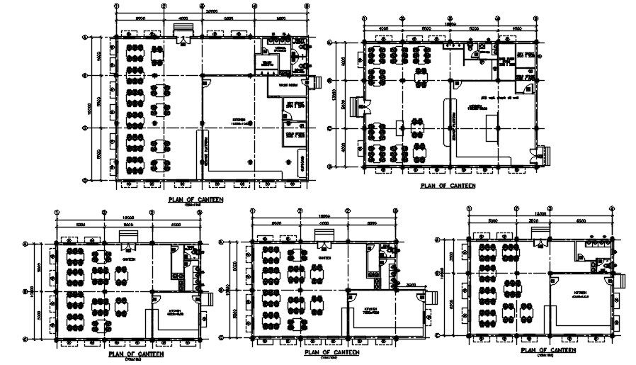
Canteen plan featuring layouts, seating arrangements, and dimensional details for accurate space planning. Ideal for architects, interior designers, and facility planners aiming for efficient and functional dining areas in commercial and institutional projects.
Uploaded by:

